Stürcken
Immobilien
Wohnen in Wiesbaden. Möchten Sie eine...
Immobilie kaufen Immobilie verkaufen
Blättern Sie durch unsere Angebote:
Wohnungen zum Mieten,
Wohnungen zum Kaufen,
Häuser zum Kaufen,
Häuser zum Mieten
VERKAUFT! Freist. EFH - 188 m² mit eingewachsenem Garten in Toplage Wi-Biebrich € 720.000,-
Das Haus befindet sich in einer ruhigen Anliegerstraße seitlich des Biebricher Friedhofs in einem reinen 1-2 Familienhausgebiet.
Die Auffahrten zur A66 und A 671 sind jeweils in 5 Minuten erreichbar.
Die Auffahrten zur A66 und A 671 sind jeweils in 5 Minuten erreichbar.
Das 1977 errichtete Einfamilienhaus in Massivbauweise verfügt über:
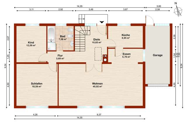
Erdgeschoss:
Wohnbereich: 40,92 m²
Essbereich: 5,79 m²
Diele: 10,83 m²
Flur: 3,69 m²
Küche: 8,95 m²
Eltern: 18,59 m²
Kind: 12,09 m²
Bad: 7,58 m²
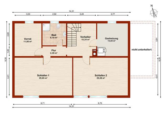
Untergeschoss:
Schlafen 1: 29,65 m²
Schlafen 2: 29,08 m²
Bad: 8,19 m²
Flur: 2,39 m²
Diele: 10,24 m²
Nutzfläche bestehend aus Keller 11,86 m² und Heizungsraum 14,84 m² und einer Einzelgarage mit 16.82 m².
Der Bebauungsplan Friedhof-Westteil Biebrich sieht eine reine Wohnnutzung (WR) vor.
Eine Ausnutzung von GRZ 0,25 = 159,75 m² und GFZ 319,50 m² mit bis zu 2 Vollgeschossen ist möglich.
Erdgeschoss:
Wohnbereich: 40,92 m²
Essbereich: 5,79 m²
Diele: 10,83 m²
Flur: 3,69 m²
Küche: 8,95 m²
Eltern: 18,59 m²
Kind: 12,09 m²
Bad: 7,58 m²
Untergeschoss:
Schlafen 1: 29,65 m²
Schlafen 2: 29,08 m²
Bad: 8,19 m²
Flur: 2,39 m²
Diele: 10,24 m²
Nutzfläche bestehend aus Keller 11,86 m² und Heizungsraum 14,84 m² und einer Einzelgarage mit 16.82 m².
Der Bebauungsplan Friedhof-Westteil Biebrich sieht eine reine Wohnnutzung (WR) vor.
Eine Ausnutzung von GRZ 0,25 = 159,75 m² und GFZ 319,50 m² mit bis zu 2 Vollgeschossen ist möglich.
Baujahr: 1977
- wunderschön eingewachsener Garten
- UG 36,5 cm KSV
- EG 30 cm Poroton + 2 cm Zementputz
- EG 20 cm Betonfertigteildecke
- DG Holzbalkendecke
- Walmdach 26 Grad
- Frankfurter Pfanne
- offner Kamin im Wohnbereich
- Elektroleitungen 3-adrig
- Sicherungskasten ohne FI-Schalter
- 2021 neue Gabrennwertheizung mit WW
- UG 36,5 cm KSV
- EG 30 cm Poroton + 2 cm Zementputz
- EG 20 cm Betonfertigteildecke
- DG Holzbalkendecke
- Walmdach 26 Grad
- Frankfurter Pfanne
- offner Kamin im Wohnbereich
- Elektroleitungen 3-adrig
- Sicherungskasten ohne FI-Schalter
- 2021 neue Gabrennwertheizung mit WW
Ein Dachausbau ist möglich.
Preis: 720.000,00 EUR



























